与(‘ 港丽 | Conrad Rangali
昨晚发了一个the muraka的特惠,朋友圈就炸了
因为土豪客户特别多,今天我就来整理一个海底套房的详细介绍
奉献给各位土豪大大
海底套餐是怎么设计的?
同类首创,别有洞天。介绍马尔代夫伦格里岛康莱德酒店的 TheMuraka。作为现代设计和科技的卓越之作,这栋双层建筑座落在万顷波涛之下,建有海底卧室、起居空间和浴室。
Muraka" 在当地语言迪维希语意为"珊瑚",集中体现这栋住宅房如何在印度洋的自然美景中存在和发展。发现独一无二的天堂。继续深入探索。

海底套房的位置在哪?
THE MURAKA 座落在海岛主要地段的离岸不远处,确保打造真正独特和私人的体验。

人间天堂
有时最简单的奢华
才是最大的回报



超越海洋
他们说天堂就在地平线的另外一边。
虽然他们从未指明是哪一边。


了解当地人
悠闲地观赏动物王国的水生动物

简约无缝的设计,让宾客完全沉浸在印
度洋瑰丽的自然环境中。

在弹性有机玻璃拱墙的包围中,这栋住宅
房坐拥 180 度壮丽的海洋世界全景,欣赏
五彩斑斓的珊瑚和一切海底美景。

采用无与伦比的水族馆技术,只有全球
首家海底餐厅 Ithaa 能与之匹敌。

Saleem 先生是马尔代夫旅游业的先锋人物,他将自己的设计才能与其对马尔代夫的终生热爱和深入了解完美融合。
THE MURAKA 由 Crown Company Pvt. Ltd. 在总监 Ahmed Saleem------马尔代夫第一位经过专业训练的建筑师------的领导下提出设想。

Murphy 先生一位企业家和创新者,他为水下水族馆的设计和技术付诸实施铺平道路。数十年来,Murphy先生出色地领导专业从事水下结构建造的工程师和设计师团队。他为马尔代夫伦格里岛康莱德酒店打造的第一项壮举是与 CrownCompany Pvt. Ltd. 共同完成的第一家海底餐厅 Ithaa。

Yamazaki 先生在东京长大,在纽约市工作,凭借自己的全球视角,他成功完成无数设计项目,成就其卓越非凡的职业生涯。他曾与Armani、Calvin Klein 和 Fiat 等世界知名客户合作,打造多个世界上豪华现代室内设计。Yamazaki先生的设计以简洁的线条、奢的材料和极简风格为特色。THEMURAKA 是散发着现代气息的宁静绿洲,是 Yamazaki 先生的代表作。

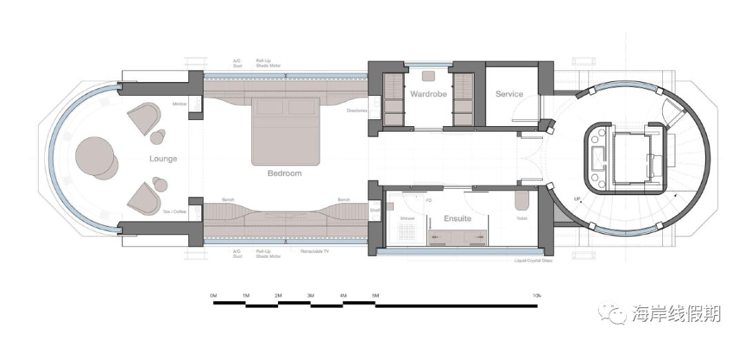
海底层
特大床卧室。
• 起居区。
• 浴室。
• 旋转楼梯通向海面上的起居室

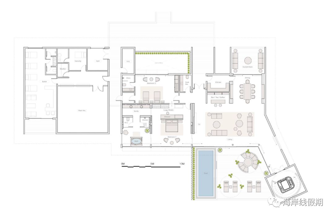
海上层
一间特大床卧室和浴室。
• 双人卧室、浴室和化妆室。
• 面朝日落的一体化起居室、厨房酒吧以及餐
饮和娱乐平台。
• 面朝日出的休闲平台,配备无边际泳池。
• 健身房。
• 管家居住区。
• 私人保安居住

包含的服务:
视频护目镜
在预订确认后,迎宾礼包将送到宾客的住宅
房,包括展示 THE MURAKA 体验的 VR 眼镜。
个性化
指定的礼宾人员将在宾客抵达前就宾客的偏
好与住宅房工作人员进行协调。
抵达:
**
**
国际机场抵达
宾客一抵达,住宅房的管家将迎接并陪同他们
前往康莱德贵宾室,然后引导宾客乘坐水上飞
机------飞机在波光粼粼的海面上疾驰,仅需
30 分钟即可抵达 THE MURAKA。
康莱德贵宾室
专为康莱德宾客打造的奢华体验------包括美
食、点心、免费的头部、颈部和肩部按摩以及
无与伦比的服务。
机上体验
机上提供 Bose 降噪耳机和 iPad 供宾客使
用。机上还提供 JS Health 招牌低温压榨果
汁。
实现:
**
**
当地工艺品+ 美食体验邻近岛屿的当地文化。
健康
JS Health 的招牌果汁和无敌美食、芳香疗法和水疗中心的各色护理,以及更多健康享受,不容错过。
厨师体验
我们的行政总厨将在 THE MURAKA 放松身心的氛围中打造令人兴奋的烹饪体验
下面就到了大家最关心的价格
价格包含:
Maximum occupancy最大入住 -- 9 PAX
Sleeps up to maximum 6 adults and 3 children below the age of 14 who stay and eat for free 最多可睡6个成人和3个14岁以下的儿童,儿童可以免费住宿和吃饭
•在入住期间提供专用的高尔夫车Buggy和摆渡船
•24小时管家,客房部,保安部和私人厨师
•私人厨师会随叫随到,根据客人的喜好,策划一系列专属于酒店的餐点:
•早餐
•午餐
•晚餐
•可定制的酒吧与选择菜单上的酒精和非酒精饮料
•独家使用度假村的游艇和船只
额外不包含:
nternal transfers from Malé马累机场接送
度假村餐厅提供的餐点
四种体验菜单中的活动和短途旅行
非酒精饮料和酒精饮料不在所列选择菜单中
酒店还提供了一些体验套餐

可搭配全国各地出发的航班,详情请咨询客服
以上价格仅供参考,如需具体的出发日期请咨询海岸线假期客服们。
也可搭配4晚及4晚以上的行程,都可以定制~~